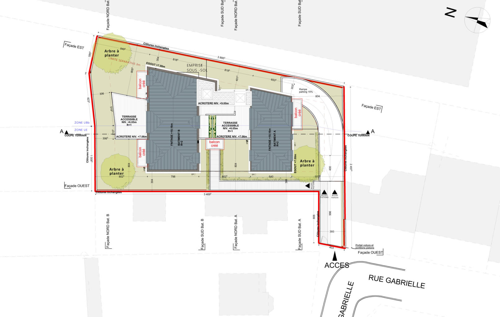
Résidence Angelus – CLAMART
Maitre d’ouvrage : Soprimmo
Architecte conception : LA VILLA
Architecte co-traitant : AOG Architectes
SDP : 710m²
Lieu du projet : Clamart
Description :
Modification du bâtiment, création de balcons supplémentaires et division d’un appartement.
Réalisation d’un permis modificatif.