Rénovation d’un appartement – BAYONNE

Maitre d’ouvrage : Particulier 
Architecte : AOG Architectes
Lieu du projet : Bayonne
SDP : 90m²
Coût : 102 000€ HT
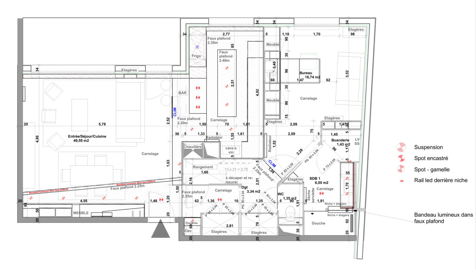
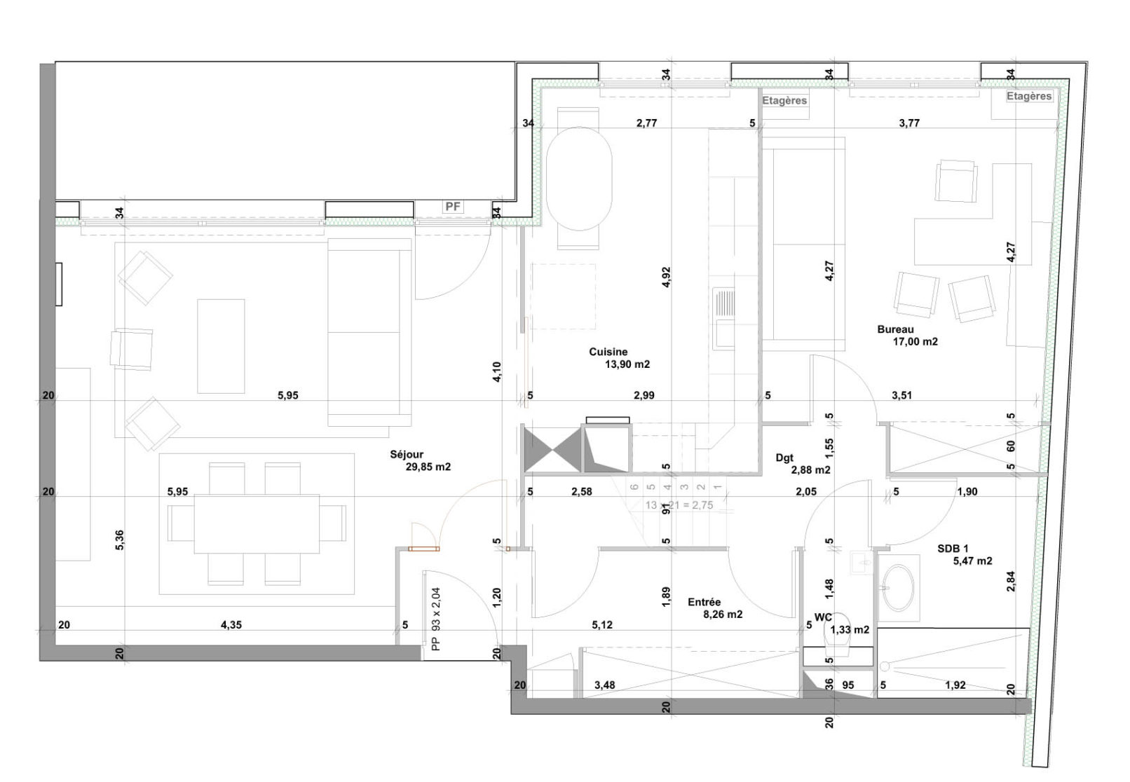
Description :
Rénovation d’un appartement, restructuration des volumes, mise en valeur des espaces, création de rangements et meubles sur mesure.