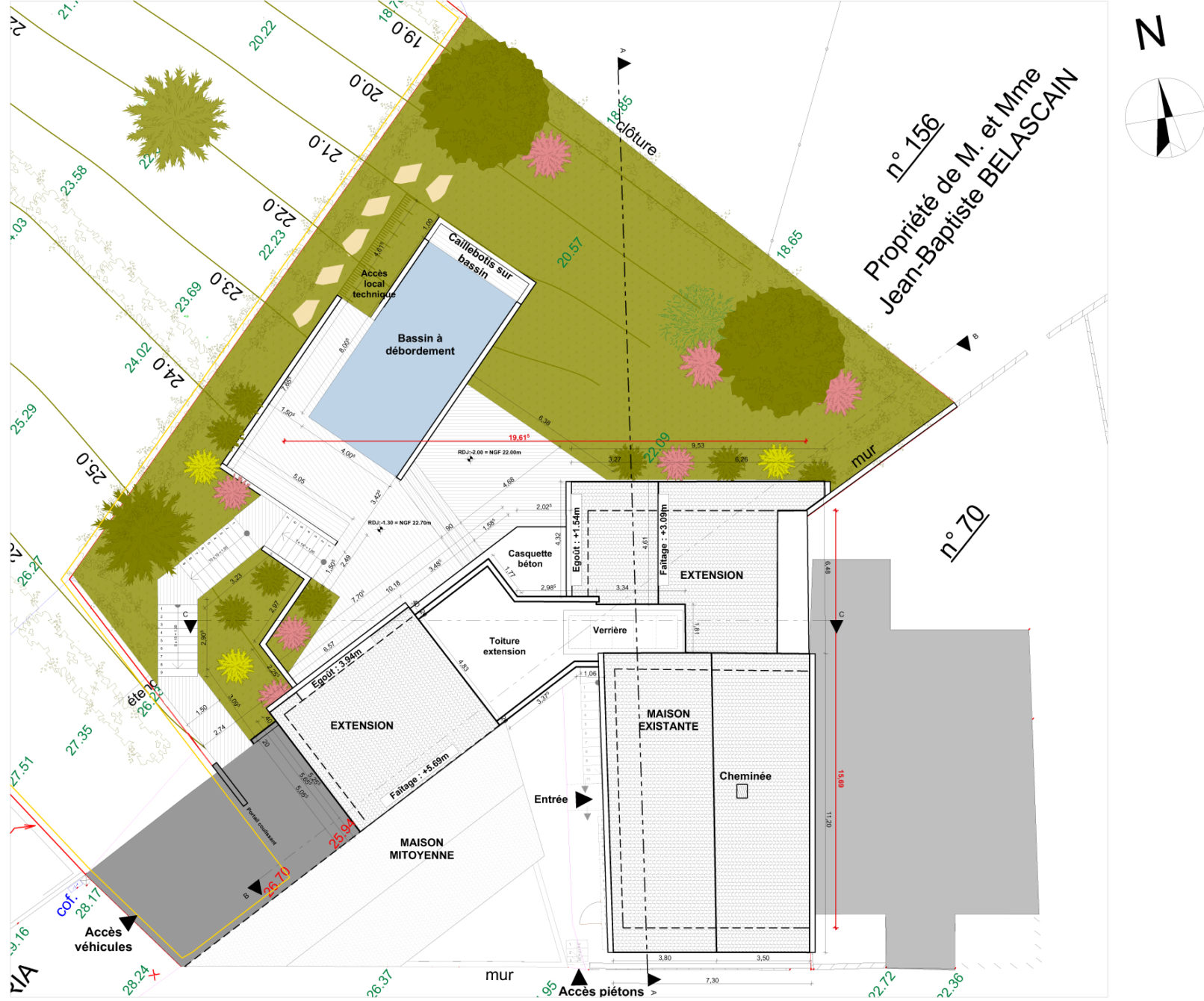
Villa – St-Jean-de-Luz

Maitre d’ouvrage : Particulier

Lieu du projet : Saint-Jean-de-Luz

SDP : 199m²

Description :

Le terrain se situe dans la commune de Saint-Jean-de-Luz, à proximité de l’océan.

Le projet consiste à rénover et agrandir une maison existante modernisée en modifiant les menuiseries et les garde-corps de la façade Sud.

L’extension en façade Nord, reprendra l’architecture existante et sera implantée dans la continuité de la maison en limite de propriété Sud donnant sur le jardin.

Les deux volumes existants séparés par le jardin seront reliés en respectant le dénivelé du terrain, donnant une impression d’une seule et unique villa de type basque.