Résidence PORCELAINE – BAYONNE

Maitre d’ouvrage : Bouygues Immobilier

Lieu du projet :        Bayonne

Architecte : AOG Architectes

SDP : 1399m²

Description :

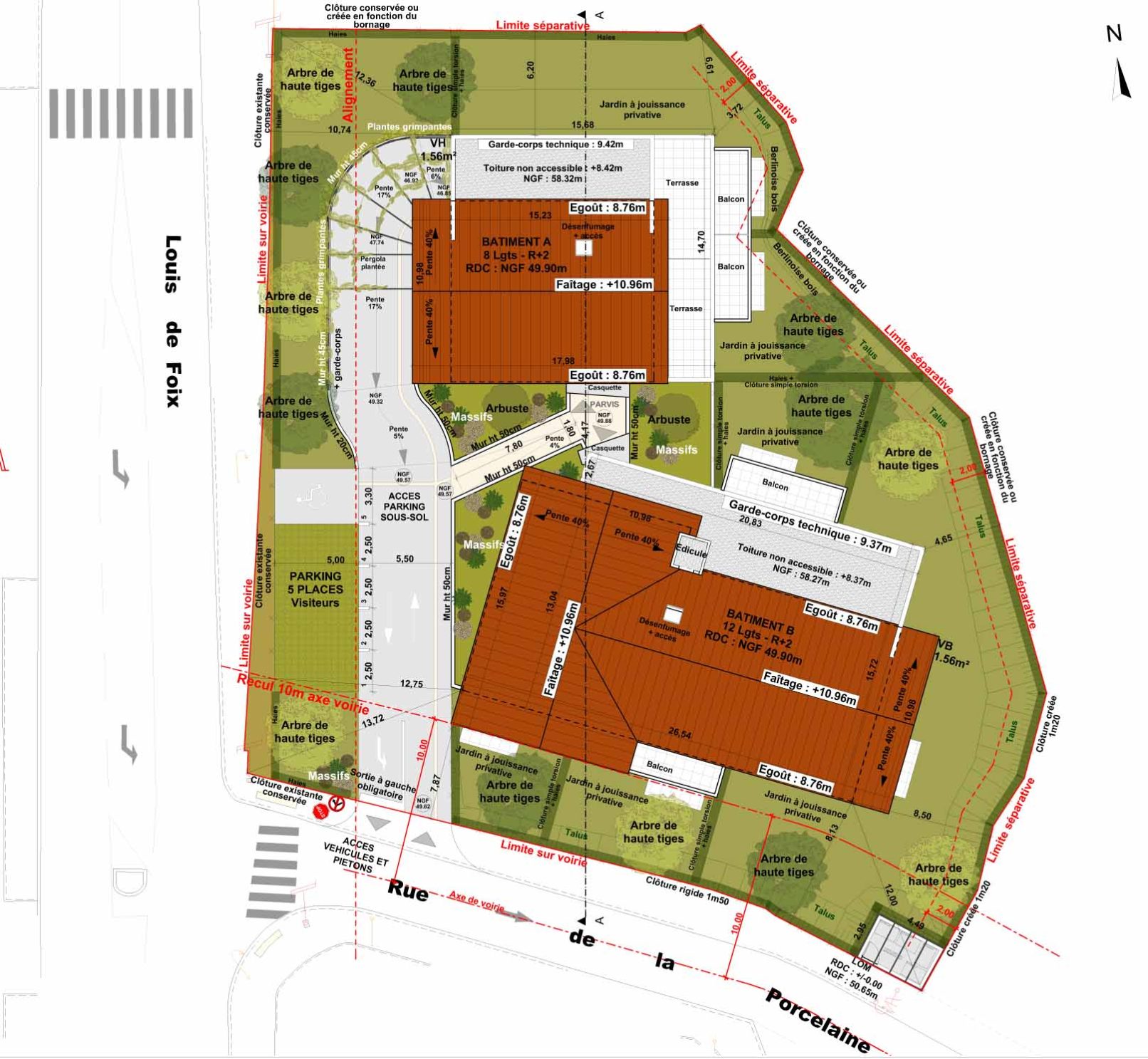
Construction d’une résidence de 20 logements. Le projet est composé de :

-1 bâtiment collectif de type R+1 en accession de 8 logements pour une surface de plancher de 503,00m²

-1 bâtiment collectif de type R+1 de 12 logements en accession d’une surface de plancher de 896,00m²

-Un parking commun en sous-sol de 26 places et 1 local deux roues de 30,5m².

-Un parking extérieur de 5 places visiteurs

-Un local ordures ménagères

La liaison entre ces deux bâtiments se fait depuis un parvis recouvrant le sous-sol, agrémenté d’arbustes et de massifs.

Les espaces verts sont en majeure partie distribués en jardins privatifs plantés d’arbres et engazonnés.