Résidence Bénesse – Bénesse-Maremne
Maître d’ouvrage : Bouygues Immobilier
Lieu : Bénesse-Maremne
SDP : 1932m²
Description :
Projet conçu par Olivier GOBRECHT
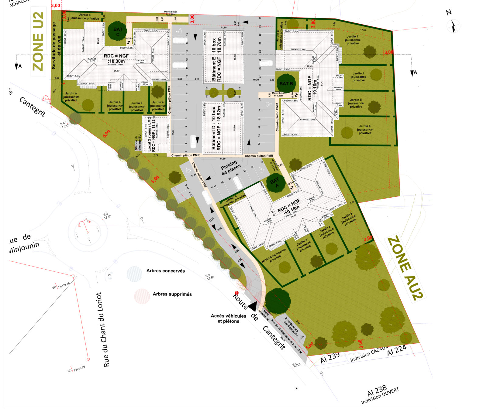
Le terrain se situe sur la commune de Bénesse-Maremne, bordé par la route de Cantegrit au Sud-Ouest, et par des habitations au Nord et à l’Est.
La répartition des logements est la suivante : 6T4 ; 12T3 ; 12T2.
Le projet est composé de 3 bâtiments semi-collectifs de 10 logements chacun, deux bâtiments seront dédiés au stationnement accueillant chacun 10 box.
Un troisième bâtiment sera aménagé en local deux roues et d’une partie local multi opérateur (LMO).