Rénovation appartement – BIARRITZ

Maître d’ouvrage : Particulier

Lieu du projet : Biarritz

Architectes : AOG Architectes

SDP : 120m²

Coût : 51 860€ HT

Description : 

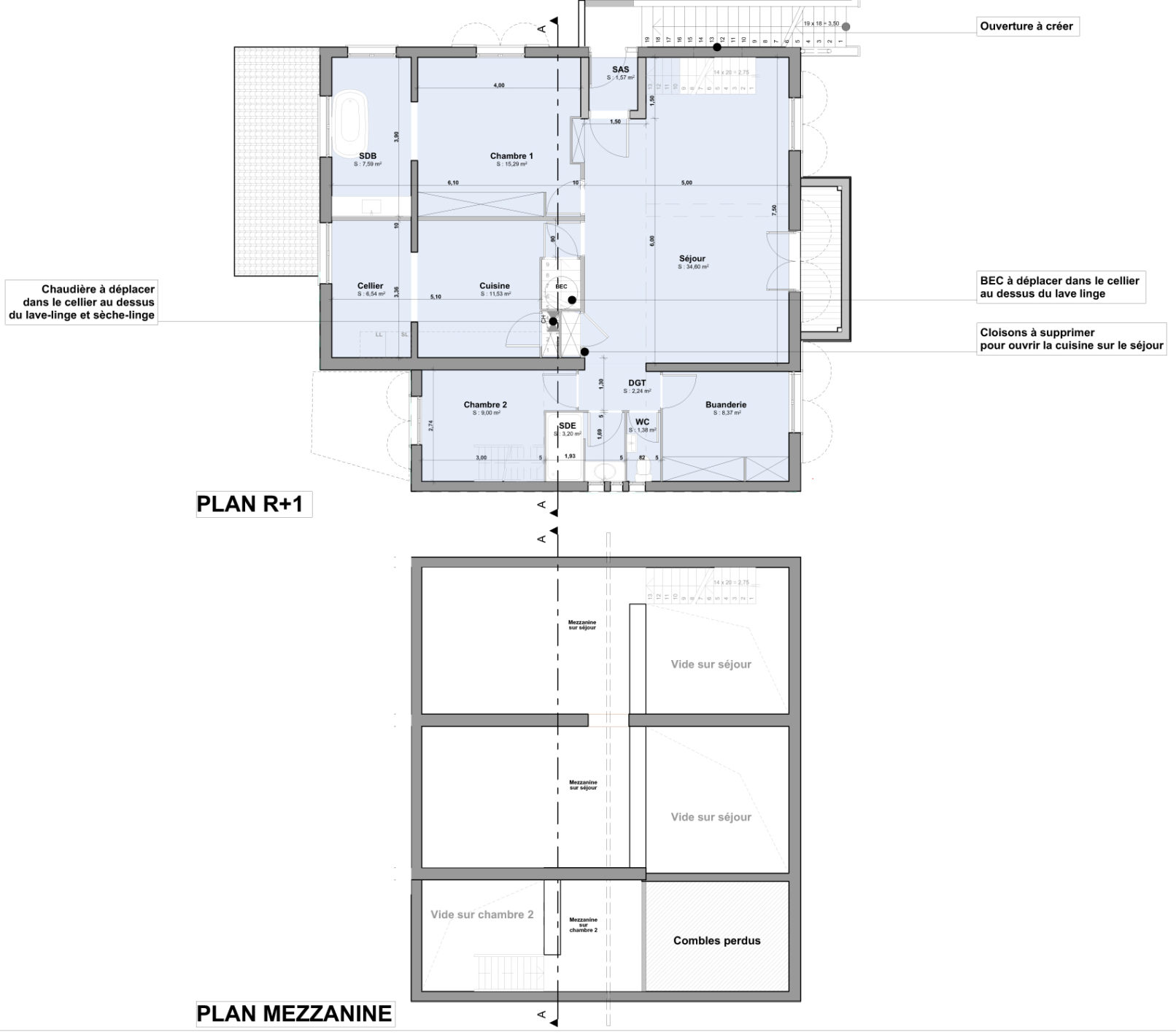
Rénovation d’un appartement, réorganisation des espaces.

Création d’un escalier sur mesure avec rangements intégrés sous volée.

Création d’une cuisine sur mesure.